クリーン化を目指す企業のパートナー  シーズシー
シーズシー クリーンルームメールマガジン
2022.9.16

 省エネ型クリーン加湿器
 ~「クリーンeco(エコ)ヒュー」販売開始 特別号~
今回は、3月末のメルマガで配信した省エネ型クリーン加湿器「クリーンeco(エコ)ヒュー」の続報を特別号でお届けします。
夏の名残を惜しみつつ季節が移り変わろうとしています。季節は過ごしやすくなりますが生産現場では静電気によるゴミ付着が問題となり対策に苦慮する時期でもあります。そんな季節を前に乾燥を嫌う工程や、季節に関係なく熱源が多く乾燥した環境など、あらゆる乾燥した環境の強い味方となってくれる省エネ型クリーン加湿器「クリーンeco(エコ)ヒュー」が販売開始となりました!是非ご検討ください!

メールが文字化けまたは表示されない場合、ここをクリックして下さい。

※本メールアドレスは送信専用です。
 お問合せはEメール:info@csc-biz.com までお願いします。

省エネ型クリーン加湿器 「クリーンECOヒュー」
販売のご案内
「クリーンeco(エコ)ヒュー」6つの特長!!

特長1)水道水でOK!!

吹き出し口にHEPAフィルターを搭載して
いるため、給水は純水などの特殊な水では
なく水道水を利用できるから無駄なコスト
を削減できます。


特長2)噴霧式で効率加湿!
噴霧式で細かいミストが加湿効率UPを
手助けします。


特長3)スイッチ1つで
 送風運転に切り替え可能!

加湿不要な夏季や中間季にはスイッチ
1つで送風運転に切り替え可能です。
オプションで背面給気が可能なので、
陽圧化クリーンユニットとしても使用
可能です。


特長4)漏水センサー内蔵!
2段階の水漏れ感知による安全設計だか
ら事故を未然に防ぎます。


特長5)目標湿度設定が可能!
目標湿度を設定し、目標に達すると自動
的に給水停止となり、設定湿度を下回っ
たら自動的に加湿を開始します。
無駄な電力や水を使用せず省エネです。


特長6)ポンプ排水対応可能! 
別売りのポンプでで排水が可能です。
排水の水勾配がない場合はユニット
下部に指定の排水ユニット取付可能
  



 HEPAフィルター搭載




庫内噴霧BOX




見やすい操作盤




背面排水口




下部吸引部
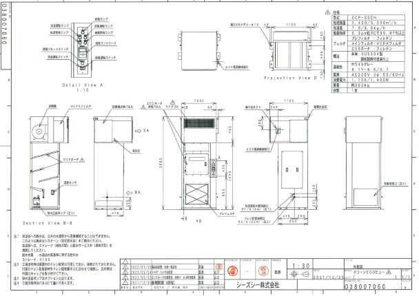
商品仕様

【製品名】クリーンeco(エコ)ヒュー
【型 式】CCP-60EH
【サイズ】W1,000×D850×H2,680(mm)
【処理風量】約40/50(m3/min)50/60Hz
【加湿量】約7.0/8.0(kg/h) ※1
【電 源】AC200V・3φ 50/60Hz
※1 周囲温湿度25℃ 30%RH時の値です。


【捕集効率】0.3μn粒子にて99.97%以上
【フィルタ】プレフィルタ:フィレドン
      メインフィルタ:HEPAフィルタ
      エリミネータ:フィレドン
【質 量】約300kg
【消費電力】1,100/1,400W

商品価格

本体価格:1,300,000(税抜)

運 賃 :別途(4t ユニック車)
納 期:約2~3ヵ月程度   


※別途排水工事が必要となります。
※取付に関するご質問は下部【お問合せ】より
お気軽にご相談ください。



★図面ダウンロードは
こちら
★カタログダウンロードは
こちら



商品に関するお問合せ、御見積依頼は
下記よりお問合せ下さい

↓  ↓  ↓
お問合せ
 

◆ メルマガ会員トップページはこちら
◆ 本メールは、ご友人や職場内での転送はフリーです。
* 修正、改ざんはお避けください。
* また、面識の無い方やメーリングリストへの転送はお控えください。
◆ 停止を希望される場合はこちら
◆ メールアドレスや社名・住所の変更はこちら
  CSC NETにログインした上で、ご変更をお願い致します。
  尚、会員情報の編集にはシーズシーのネットショップ【CSC NET(シーズシーネッ  ト)】へ会員登録が必要となります。
  未登録の方は大変お手数ではございますが、ネットショップより新規でご登録頂き  、会員情報をご入力頂きますよう、お願い致します。会員登録は無償です。
  また、CSC NETは会員制ショップの為、商品をご購入頂くには会員登録が必要とな  ります。 ご登録頂くと会員様のみの特典として、各商品のサンプルをお試し頂くこ  とも可能です。是非この機会にご登録下さい。
クリーンルームユーザーのためのポータルサイト     シーズシー株式会社
copyright(C).CSC Co.,Ltd. all rights reserved   ロゴ   ネットショップへ